• Casa a estrenar en Pinares. Precio lanzamiento. Punta del Este

Casa

Pinares, Punta del Este

Venta USD 292.000

  • 2

    Dorms

  • 3

    Baños

  • Sup.

    350 m2

En Venta

ID de la propiedad : 45

Planeabas construir? pero el simple hecho de solo pensar en todos los pasos que lleva el desarrollo de un proyecto: conseguir arquitect@, constructores, permisos de construcción, seguimiento de obra, etc. Todo esto te resulta agobiante? Esas preocupaciones quedan a cargo de los desarrolladores, con años de experiencia y variedad de casas entregadas.

Te invitamos a conocer este nuevo proyecto residencial en Pinares, a tan solo 700 metros de las hermosas playas que caracterizan a esta icónica ciudad balnearia. Con un diseño funcional y acogedor, esta propiedad es ideal tanto para disfrutar de unas vacaciones inolvidables como para establecer tu hogar permanente.

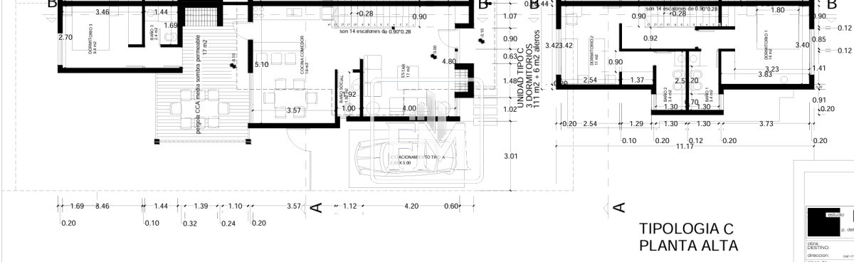
Ubicada en un terreno de 350 m², esta propiedad ofrece un equilibrio perfecto entre comodidad y funcionalidad. Disfruta de la tranquilidad de Pinares, rodeado de naturaleza y a un paso del mar.

DETALLES DE LA CONSTRUCCIÒN, TERMINACIONES Y EQUIPAMIENTO

FUNDACIONES: PLATEA DE HORMIGÓN ARMADO. VIGAS PERIMETRALES Y PATINES EN PILARES.

CUBIERTAS Y ENTREPISOS: Steel Frame con doble chapón fenólico (interior y exterior para reforzar estructura).
MUROS Y TABIQUES: la terminación exterior será con placa cementicia y basecoat (terminación revoque liso), terminación interior yeso.
El muro medianero será de mampostería tradicional con aislación entre ambas casas: empacado de yeso con de lana de roca.

LOS TABIQUES INTERIORES PODRÁN SER DE MAMPUESTOS TRADICIONALES O SISTEMA DURLOCK SEGÚN CADA CASO.

TERMINACIONES EXTERIORES: MUROS EXTERIORES TERMINADOS CON COMBINACIÓN DE REVESTIMIENTOS, EN WPC, REVOQUES Y
PINTURAS TEXTURAS O PIEDRAS SEGÚN CORRESPONDA.

INTERNET Y WIFI: COBERTURA DE CONEXIÓN DE ALTA VELOCIDAD EN LOS ESPACIOS COMUNES (CLUB HOUSE, PISCINA) Y EN LAS
CASAS A PARTIR DEL RUTER SUMINSTRADO POR CADA PROPIETARIO.
TV CABLE: PREVISION DE CONEXIONES EN LAS CASAS (ESTAR Y DORMITORIO) PARA EL SERVICIO DE SEÑALES DE TV POR CABLE.
PARAMENTOS VERTICALES INTERIORES: MUROS TERMINADOS CON ENDUIDO Y PINTURA LATEX LAVABLE COLOR BLANCO O A
DETERMINAR.
CIELORRASOS: PODRÁN SER DE HORMIGÓN VISTO O DE PLACAS DE YESO SUSPENDIDAS SOBRE ESTRUCTURA METALICA,
TERMINADO CON EDUIDO Y PINTURA LATEX.

PAVIMENTOS: EN PORCELANATOS RECTIFICADOS O PORTLAND LUSTRADOS SEGÚN EL CASO.
REVESTIMIENTOS MUROS INTERIORES: PORCELANATOS O CERÁMICOS.

M E M O R I A D E S C R I P T I V A

DETALLES DE CONSTRUCCIÒN, TERMINACIONES Y EQUIPAMIENTO

ABERTURAS DE ALUMINIO: ALTA PRESTACION, LINEA GALA DE ALCAN CON VIDRIO DOBLE DVH.
PUERTAS INTERIORES: ENCHAPADAS, HERRAJES COLOR A DEFINIR.
PLACARES: SE ENTREGARAN CON PLACARES EN DORMITORIOS Y COCINAS, SOBRE Y BAJO MESADA, CON INTERIORES Y
ACCESORIOS COMPLETOS.
CALEFACCION: TODAS LAS UNIDADES CUENTAN CON PREVISIONES PARA AIRE ACONDICIONADO.
LOSA SANITARIA, GRIFERIA Y ACCESORIOS: TODOS SERÁN MONOCROMADOS DE PRIMERA CALIDAD, CON ACCESORIOS EXTERIORES
(PERCHAS, PORTARROLLOS, ETC) ESPEJOS.
MESADAS BAÑOS Y COCINA: EN GRANITO COLOR A DEFINIR.
ELECTRODOMESTICOS: LAS UNIDADES SERÁN ENTREGADAS CON ANAFE, HORNO ELECTRICO, CAMPANA.

CLUB HOUSE CERRADO, ESTUFA DE LEÑA, PARRILLERO, COCHERAS CORTESIA.
PISCINA EXTERIOR CON DECK, REPOSERAS.
TERRENO PRIVADO DE CADA CASA: 350m2
ÁREA DE TERRENO COMUN: 800m2

Entrega 2026
Reserva 10%
Entrega por avance de obra.
Saldo contra entrega de la propiedad.
Para compra por Banco se puede reservar y esperar el final de obra.

No dejes pasar la oportunidad de hacer de este lugar tu nuevo hogar. Consulta con nuestros asesores y descubre todo lo que esta propiedad tiene para ofrecerte. ¡Tu nuevo estilo de vida te espera!
Cuándo visitamos la obra?

Características

  • Barrio  Pinares
  • Distancia al Mar  700
  • Terreno m2  350
  • Edificado m2  114
  • Dormitorios  2
  • Baños  3
  • Suites  0
  • Toilette  Si
  • Capacidad Personas  0
  • Cantidad Camas  0
  • Dep. Servicio  Si
  • Estufa Leña  Si
  • Cantidad de Plantas  0
  • Propiedad Horizonal  Si

Ubicación

Parada 35 , Pinares, Punta del Este

Solicita mas información

Chatea con nosotros